
Permis de construire, conseils et agencements
Accompagnement tout au long de la réalisation de votre projet. Conseils pour la réalisation de votre construction, de l'aménagement des espaces intérieurs, aux choix des matériaux et au systèmes de chauffage mis en place pour vous assurer un maximum de confort.
Vous souhaitez construire votre maison ? Créer un garage ou une extension ?Nous vous aidons et réalisons l'ensemble des documents nécessaires à l'obtention de votre permis de construire, adaptés en fonction des normes réglementaires de votre PLU et de votre terrain.
Une fois la réalisation des plans de conception de votre projet validés, et votre permis déposé, nous vous mettons en relations avec des entreprises, ouvriers et artisans qualifiés, afin que vous puissiez construire votre projet en toute sécurité.
PCCA, notre accompagnement au service de votre projet !


La construction en France en quelques chiffres
Selon une étude du Commissariat Général au Développement Durable aujourd'hui, 91% des maisons individuelles en France se construisent sans architectes.
61%
Par un constructeur
21%
Par des particuliers
7%
Par des artisans divers

N'hésitez pas à nous envoyer votre message sur notre onglet "Contact", pour toute demande relative à un projet vous concernant. Nous prendrons le temps et le soin d'étudier votre demande, et pourrons vous proposer un service adapté à vos attentes. Si vous souhaitez être recontacté par téléphone, laissez nous vos coordonnées et précisez nous vos disponibilités.
Pour toute demande devis, trouvez ci-dessous un lien vous permettant de réaliser votre demande de devis gratuit en ligne, pour un permis de construire ou une demande de conseils pour l'agencement de votre projet.
Dernier projet
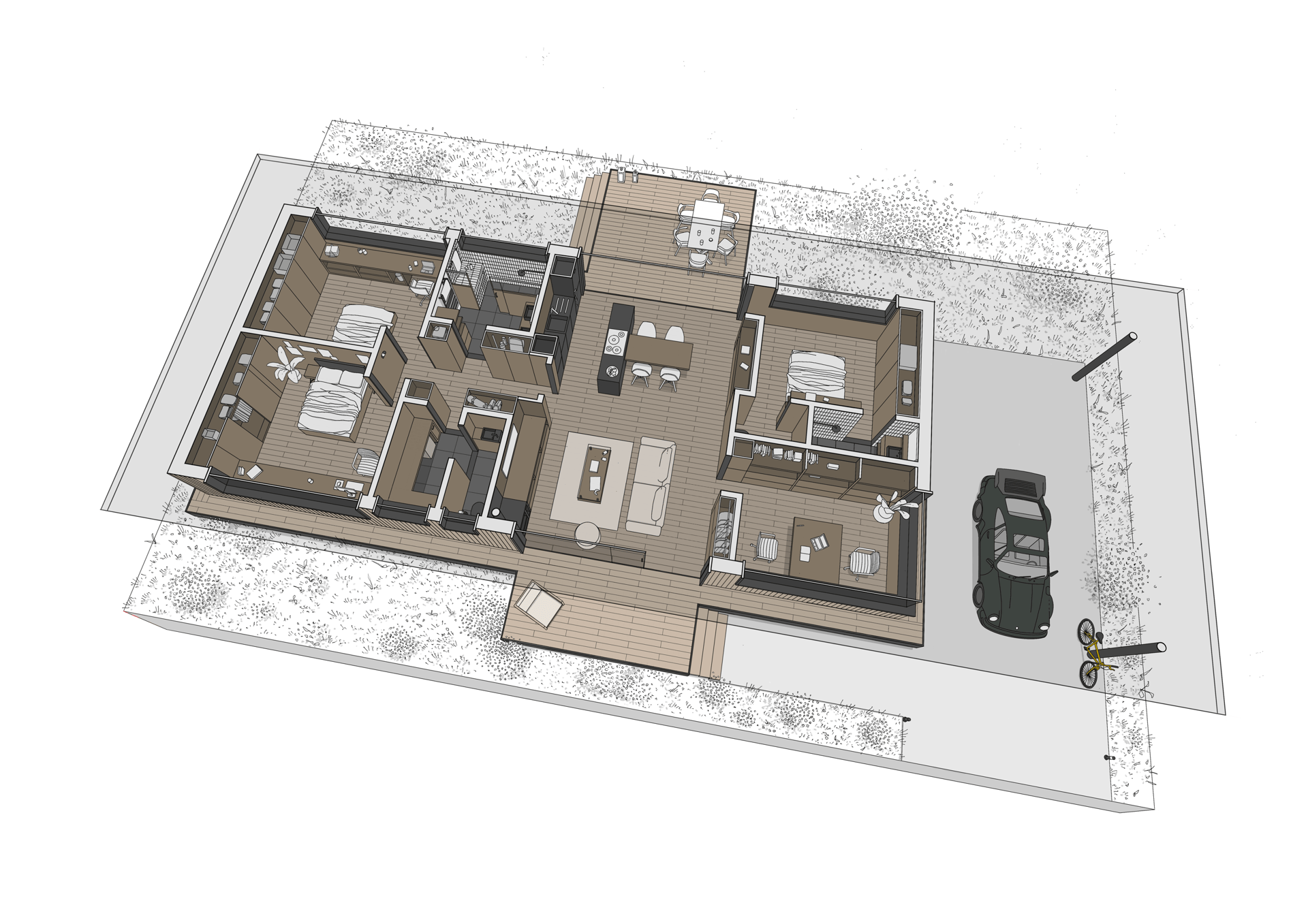
Nous avons réalisé les plans de conception d'une maison individuelle, à l'image des maisons traditionnelles japonaises. Nous avons ainsi réfléchi, en fonction des spécificités du terrain et du PLU, à la mise en place d'éléments adaptés (orientation, terrasses, mise en place de systèmes de chauffage et d'eau chaude spécifiques) permettant de maximiser l'efficacité de ce bien. Cette maison de 146 m2 dispose de 3 grandes chambres dont une suite parentale avec salle de douche et toilettes intégrés. L'espace de vie se compose d'une cuisine ouverte sur un séjour/salon de plus de 40 m2. Cette maison comporte également un bureau pouvant devenir une 4ème chambre, ainsi que d'une salle de bain, d'une buanderie, et de toilettes séparées.






Notre équipe




Thomas
Anne-Lise


Henri
Créé par 3 diplômés de master d'architecture, PCCA-Studio est une agence à taille humaine. Notre but : vous aider à réaliser l'ensemble de vos projets de construction, maison, rénovation, réhabilitation, extension, garage, ...
Diplômé en Master d'Architecture
Diplômée en Master d'Architecture
Diplômé en Master d'Architecture





